製品をさがす Products
工事現場用仮設トイレ GKL-SW26 女性用
工事現場用仮設トイレはバイオトイレ本体を内蔵した仮設トイレです。 価格が安く、処理能力が高く、敷地面積が小さいことが特徴です。 外装は鋼板にシリコン塗装を施しています。
GKL型→女性用、小便器無し
GKM型→男女用、小便器付き
完成品でのお届けとなります。 ユニック車での運搬となりますので、車両が進入できて荷降ろし作業が可能な場所までの納品となります。
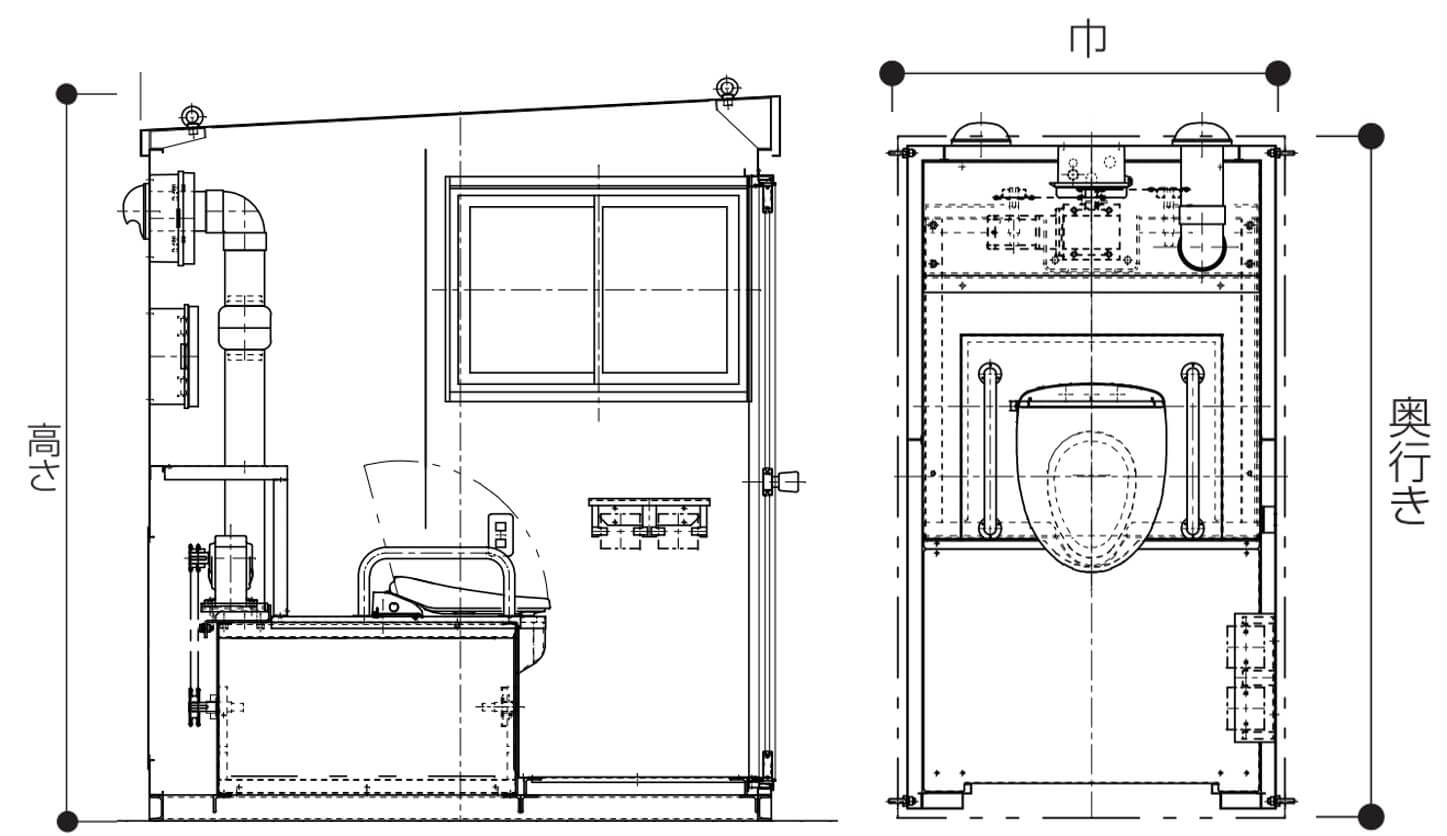
品番GKL-SW26 女性用
一日の使用目安(回)45~55
巾(mm)1050
奥行き(mm)1850
高さ(mm)2100
重さ(kg)730
電源AC100V
ヒーター20W×16本
モーター100W
製品の特長

バイオトイレBio-Luxは水を使わずオガクズでし尿を処理する「自己完結型の新型トイレ」です。

空気の流れとオガクズ効果によって、トイレ室内は無臭です。

オガクズ交換は年に2~3回程度です。(必ず全量交換してください)

処理能力の違いで機種は多くありますので、一日の使用目安にあわせて機種をお選びいただけます。

バイオトイレ「Bio-Lux」の特徴

・水を使わない

・普通のオガクズを使用する

・オガクズに特別な菌は不要

・トイレットペーパーも分解できる

・使用後のオガクズは有機肥料として再利用ができる

・トイレ室内は無臭